Affascinante dimora dei primi del '600 con giardino

NumeroVani
5
Superficie
169
Bagni
2
Piano
su più livelli
€ 365.000
Misano Monte - Scacciano - Rif. 2623
Venduto

> Descrizione

MISANO ADRIATICO – SCACCIANO**** ESCLUSIVA ELICASA****
Affascinante dimora dei primi del ‘600 con giardino esclusivo a Scacciano, Misano Adriatico

In posizione strategica a pochi minuti dal mare, nel borgo di Scacciano a Misano Adriatico, proponiamo in vendita una casa semi-indipendente dei primi del ‘600, sapientemente ristrutturata, che conserva intatto il fascino delle origini grazie a dettagli architettonici autentici: travi a vista, pareti in mattoni e pietra, pavimenti in cotto e finiture dal sapore rustico ma elegante.
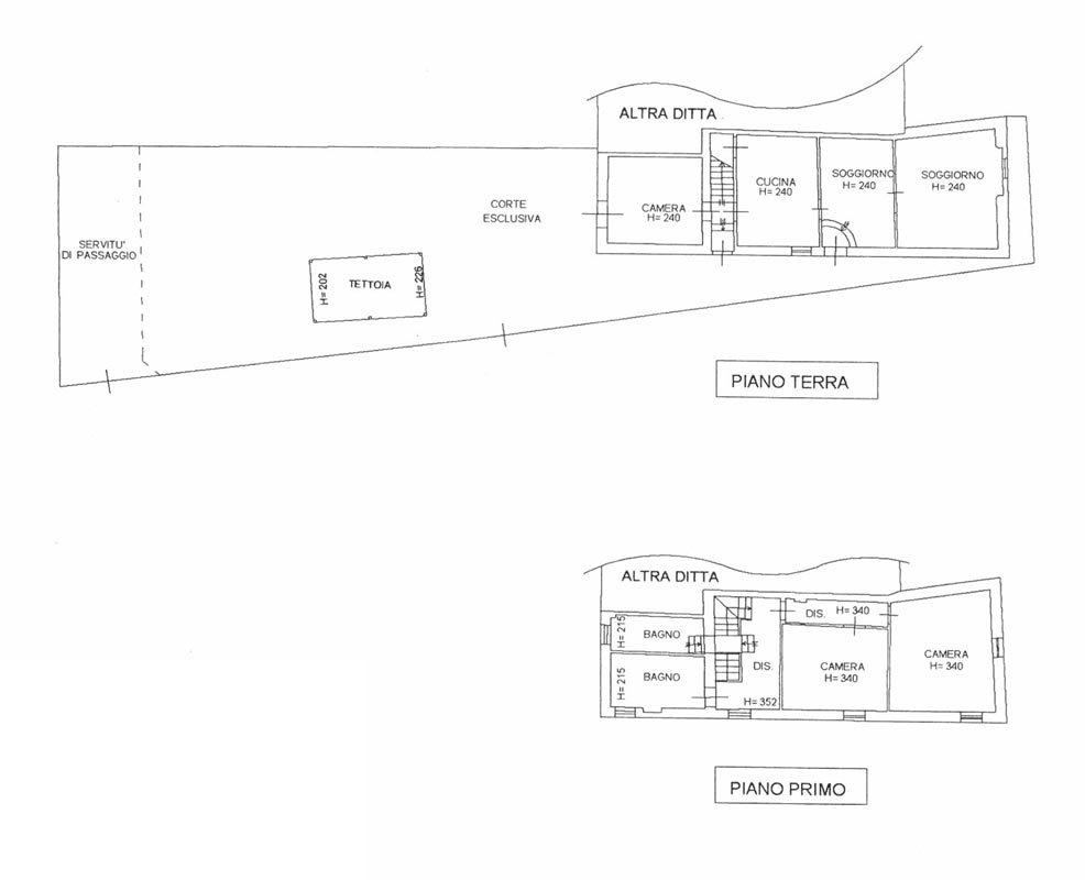
L’abitazione si sviluppa su due livelli:
Al piano terra si apre una zona giorno accogliente, composta da un’elegante sala da pranzo che tramite un arco apre su un soggiorno caldo e pronto ad essere vissuto.
Una cucina in muratura con camino, elemento che dona calore e carattere all’ambiente. Sempre sullo stesso livello si trova una prima camera da letto, con accesso diretto al giardino, ideale come studio, stanza per gli ospiti o comoda soluzione abitativa.
Al piano superiore si sviluppa la zona notte, composta da due camere matrimoniali spaziose e luminose, accompagnate da due bagni ben rifiniti, curati nei materiali e nei dettagli.
All’esterno, un giardino esclusivo e riservato circonda la casa, perfetto per vivere momenti all’aperto in un contesto autentico, ricco di atmosfera e dove poter comodamente parcheggiare due automobili essendoci due cancelli automatici. 
Una residenza dal forte impatto visivo, pronta da abitare, perfetta per chi cerca una casa con personalità e storia, senza rinunciare alla funzionalità degli spazi.
La casa ha impianti indipendenti, caldaia a condensazione, pozzo con impianto d’irrigazione e cancelli automatizzati.
RIF. 2623  EURO 365.000

La presente inserzione non costituisce elemento contrattuale, pertanto le informazioni in essa riportante quali descrizione, planimetrie, misure e posizione sono da ritenersi del tutto indicative e non potranno essere utilizzate come parte integrante di un eventuale contratto di vendita della proprietà, non vincolando quindi in alcun modo l’agenzia immobiliare.

> Caratteristiche

Tipologia
Tipologia
Casa abbinata | Stato Buono
Contratto
Contratto
Vendita
Anno costruzione
Anno costruzione
1600
Superficie
Superficie
169 m²
Piano
Piano
su più livelli
Locali
Locali
5
Camere da letto
Camere da letto
3
Bagni
Bagni
2
Classe energetica
Classe energetica
in fase di rilascio
Posto auto / Posto auto coperto
Posto auto / Posto auto coperto
Si / No
Giardino
Giardino
Si

> Mappa

Hai qualche domanda?

Referente immobile