Attico con vista panoramica Riccione zona porto

NumeroVani
5
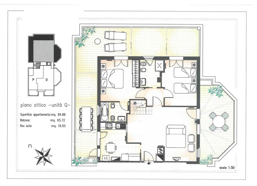
Superficie
85
Bagni
2
Piano
3
€ 890.000
Riccione - porto - Rif. 2421

> Descrizione

RICCIONE – PORTO
**ULTIMO PIANO DI LUSSO SU DUE LIVELLI** 
In zona strategica, comoda la mare, a pochi passi dal viale Ceccarini e dal porto canale.
In elegante piccola palazzina, appartamento posto all’ultimo piano con ascensore.  
Appartamento di lusso, così composto: ingresso su ampio soggiorno – pranzo molto luminoso grazie al terrazzo abitabile pergolato ideale per trascorrere momenti di relax e privacy. 
Cucina abitabile con ulteriore terrazzo con tende ombreggianti che circonda l’immobile.
Disimpegno notte, prima camera padronale con bagno en- suite, secondo bagno a servizio della zona notte e  seconda camera da letto.  
Tramite scala arredo arriviamo al piano mansardato con ottime altezze al momento sviluppato in un unico vano, ideale per creare un altro spazio secondo le esigenze del compratore.   Garage al piano seminterrato completa il valore dell’immobile.
Disponibile da subito.
RIF. 2421   EURO 890.000
La presente inserzione non costituisce elemento
contrattuale, pertanto le informazioni in essa riportante quali descrizione,
planimetrie, misure e posizione sono da ritenersi del tutto indicative e non
potranno essere utilizzate come parte integrante di un eventuale contratto di
vendita della proprietà, non vincolando quindi in alcun modo l’agenzia
immobiliare.

> Caratteristiche

Tipologia
Tipologia
Attico | Stato Signorile
Contratto
Contratto
Vendita
Anno costruzione
Anno costruzione
2004
Superficie
Superficie
85 m²
Piano
Piano
3
Locali
Locali
5
Cucina
Cucina
abitabile
Camere da letto
Camere da letto
2
Bagni
Bagni
2
Classe energetica
Classe energetica
D
Garage
Garage
Si
Balcone
Balcone
1
Terrazzi
Terrazzi
1
Mansarda
Mansarda
Si

Hai qualche domanda?

Referente immobile