Lotto edificabile - Misano Adriatico

Superficie
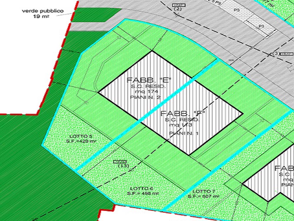
174
Piano
2
€ 200.000
Misano Monte - Rif. 2252

> Descrizione

MISANO ADRIATICO – MONTE
***ESCLUSIVA ELICASA*** 
***LOTTI EDIFICABILI*** 
Sulle prime colline di Riccione, a soli 5 km dalla cosa, in posizione panoramica, proponiamo in vendita lotto edificabile di mq.450 circa con la possibilità  di edificare circa 174 mq. di abitazione oltre agli accessori. Il lotto si trova in un area già urbanizzata con collegamenti alle pubbliche utenze, aree verdi e parcheggi. Documentazione planimetrie e rendering presso Elicasa 
RIF. 2252  EURO 200.000
La presente inserzione non costituisce elemento
contrattuale, pertanto le informazioni in essa riportante quali descrizione,
planimetrie, misure e posizione sono da ritenersi del tutto indicative e non
potranno essere utilizzate come parte integrante di un eventuale contratto di
vendita della proprietà, non vincolando quindi in alcun modo l’agenzia
immobiliare.

> Caratteristiche

Tipologia
Tipologia
Terreno edificabile
Contratto
Contratto
Vendita
Anno costruzione
Anno costruzione
2023
Superficie
Superficie
174 m²
Piano
Piano
2
Posto auto / Posto auto coperto
Posto auto / Posto auto coperto
Si / Si
Garage
Garage
Si
Cantina
Cantina
Si
Giardino
Giardino
Si

> Mappa

Hai qualche domanda?

Referente immobile