> Descrizione
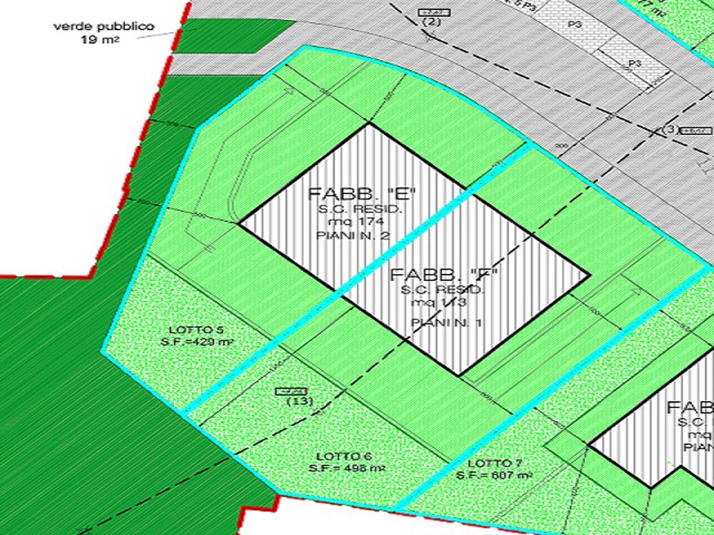
Misano Monte in zona panoramica ed urbanizzata, lotto edificale di mq 498, superficie fabbricabile mq 113 oltre a servizi. Possibilità di poter realizzare mono famigliare, nelle immediate vicinanze il centro di misano monte con servizi di prima necessità. Maggiori informazioni in ufficio.
> Caratteristiche
Tipologia
Terreno edificabile
Contratto
Vendita
Anno costruzione
2023
Superficie
113 m²
Piano
1
Posto auto / Posto auto coperto
Si / Si
Garage
Si
Mansarda
Si
Tavernetta
Si
Giardino
Si