Piano terra a Scacciano

NumeroVani
3
Superficie
77
Bagni
1
Piano
terra
€ 235.000
Misano Monte - Scacciano - Rif. 2342
Venduto

> Descrizione

MISANO ADRIATICO LOCALITA’ SCACCIANO 
Sulle prime colline a soli 1.5 Km dal centro  di Riccione, in zona servita anche da mezzi pubblici in posizione residenziale abitata tutto l’anno.
In piccolo elegante condominio con finiture di pregio senza ascensore e con bassissime spese condominiali..
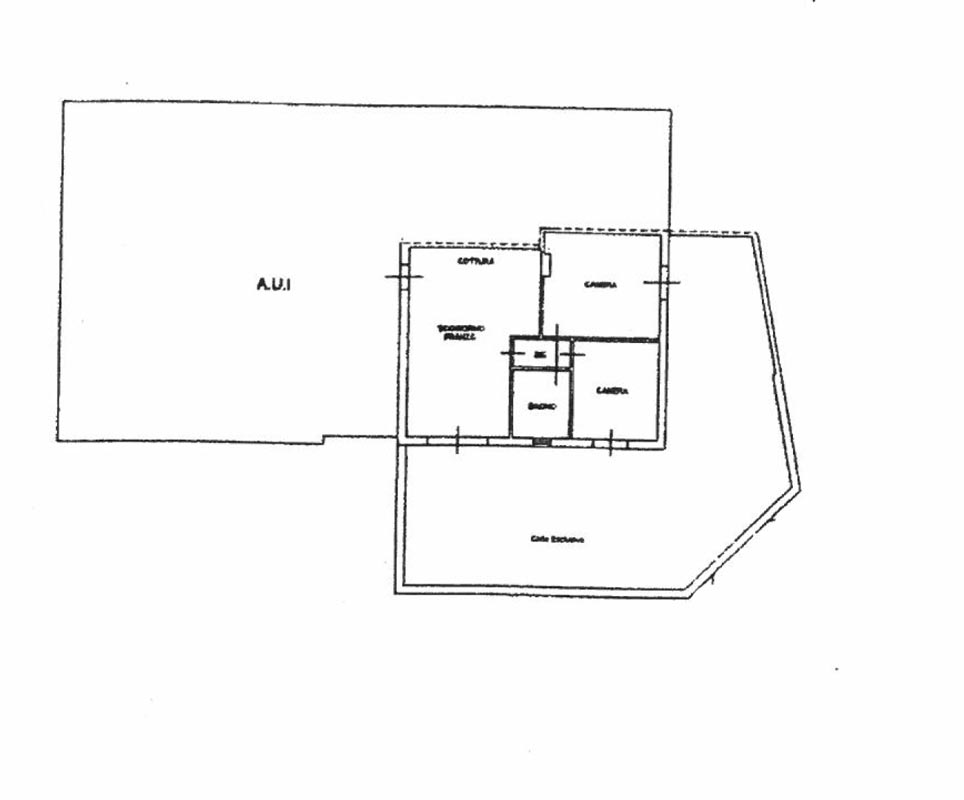
Appartamento posto al piano terra libero su due lati, internamente composto da ingresso su ampio soggiorno con cucina a vista, disimpegno reparto notte con una camera matrimoniale, una cameretta che può ospitare un letto a una piazza e mezza, un bagno finestrato con box, un giardino di c.a. 80 mq., ideale anche per chi ha un cane e per pranzi e cene all’aperto.
Garage al piano seminterrato e posto auto al piano terra di proprietà.
LIBERO DA SUBITO
RIF. 2342 RICHIESTA 235.000
La presente inserzione non costituisce elemento contrattuale, pertanto le informazioni in essa riportante quali descrizione, planimetrie, misure e posizione sono da ritenersi del tutto indicative e non potranno essere utilizzate come parte integrante di un eventuale contratto di vendita della proprietà, non vincolando quindi in alcun modo l’agenzia immobiliare.

> Caratteristiche

Tipologia
Tipologia
Appartamento | Stato Buono
Contratto
Contratto
Vendita
Anno costruzione
Anno costruzione
2004
Superficie
Superficie
77 m²
Piano
Piano
terra
Locali
Locali
3
Cucina
Cucina
angolo cottura
Camere da letto
Camere da letto
2
Bagni
Bagni
1
Classe energetica
Classe energetica
E
Posto auto / Posto auto coperto
Posto auto / Posto auto coperto
Si / No
Garage
Garage
Si
Giardino
Giardino
Si

> Mappa

Hai qualche domanda?

Referente immobile